Appartamento con box all'asta a Bergamo (BG)

BergamoCeladina - Appartamento in vendita
127.095 €
Caratteristiche principali
135 m²
Superficie
6
Locali
4
Camere
2
Bagni
Descrizione
Codice Annuncio: QR+
Offerta Minima: 95.321,04
Prezzo Base:127.094,70
Valore di Perizia:157.862,00
Data e Ora dell’Asta:11/06/2026 10:30
Termine Presentazione Offerte: 10/06/2026 12:00

********************************************************************************
N.B:
-Le foto e la geolocalizzazione presenti negli annunci potrebbero essere solo indicative. La documentazione ufficiale invece è disponibile su richiesta e solo essa farà fede sul piano legale .CONTATTARE LO STUDIO PER CONFERMA E PER MAGGIORI INFORMAZIONI !

-La vendita all’Asta dell’immobile è stata disposta dal TRIBUNALE DI COMPETENZA e presuppone che l’interessato - qualora intenda partecipare in autonomia - abbia piena conoscenza e consapevolezza dei contenuti di tutta la documentazione riguardante la PROCEDURA se non intende rivolgersi ad un Professionista del Settore !

-Per avere maggiori informazioni o per richiedere un sopralluogo potrai contattarci ai seguenti recapiti :
• Tel: 0824.607786 - 0824.275196 - 327.2178180
• Mail: info@iadanzaimmobiliareaste.com
• Web: www.iadanzaimmobiliareaste.com
********************************************************************************

Appartamento con box all'asta a Bergamo (BG) in Via Amerigo Vespucci, 5.
L'immobile è situato in zona Celadina, area residenziale munita dei principali servizi di urbanizzazione primaria e secondaria.
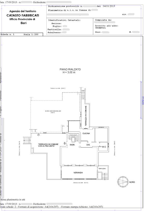
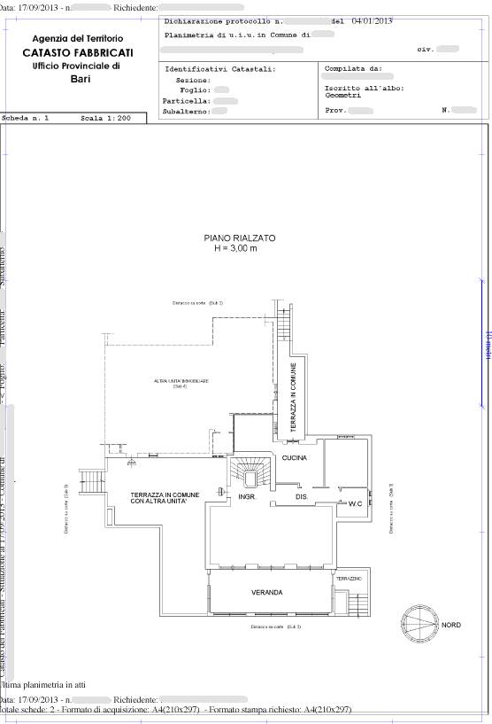
L'appartamento, posto al piano rialzato di una palazzina, è al suo interno così composto: ingresso, soggiorno, cucina separata, disimpegno, due camere da letto, doppi servizi e balcone.
Completa la proprietà un comodo box auto al piano seminterrato.
------------------------------------------------------------------------------------------------------------------------

////////////////////////////////SCOPRI LA DIFFERENZA////////////////////////////////////////
Perché sceglierci?

PERCHE DI NOI TI PUOI FIDARE!

Ti basta compilare la richiesta presente a lato dell’annuncio e riceverai tutta l’assistenza necessaria per ricercare ed acquistare l’immobile che desideri!

//////////////////🌟 PROMOZIONI ESCLUSIVE ONLINE/////////////////////////

Oltretutto Inviandoci la tua richiesta tramite il FORM DI CONTATTO, presente sulla destra di tutti gli annunci inseriti sul nostro SITO www.iadanzaimmobiliareaste.com otterrai automaticamente:
- Una Consulenza gratuita iniziale.
- Una polizza Protezione Casa in OMAGGIO!
- La restituzione delle spese di istruttoria (solo in caso di aggiudicazione).
- Uno Sconto del 3% sul nostro compenso finale.


/////////////////🔑 I NOSTRI PUNTI DI FORZA////////////////////////////////////////

Ciò che ci rende unici è il nostro approccio dedicato e professionale, nell'interesse esclusivo del cliente acquirente.
• Consulenza Gratuita e Professionale: Sempre disponibili per una consulenza senza impegno, con cortesia e professionalità.
• Indipendenza e Trasparenza: Operiamo su rappresentanza soltanto in favore dell’acquirente, senza l'assillo di dover vendere a tutti i costi, garantendo imparzialità e competenze. La nostra reputazione è la tua prima garanzia.
• Visite Immobiliari Organizzate: Se desideri visionare un immobile, organizziamo la visita in modo completamente gratuito, occupandoci noi di tutte le formalità telematiche necessarie.
• Istruttoria accurata: A differenza di molti operatori del Settore che si limitano a "smaltire" immobili come "visti e piaciuti", il nostro approfondito esame della pratica (legale, tecnico, condominiale, fiscale, finanziario) ti assicurerà la tranquillità che cercavi. Noi redigiamo una "Relazione di Fattibilità Tecnico/Legale" prima di ogni partecipazione all'asta che sintetizza ogni aspetto della Procedura.
Siamo gli unici insomma a "metterci la faccia".
• Assistenza dedicata passo dopo passo: Il nostro consulente esperto ti assiste in ogni fase, dalla ricerca all'aggiudicazione e anche oltre.
• Ricerca Personalizzata: Se non hai tempo per la ricerca, inviaci la tua richiesta tramite il SITO e lo faremo noi per te.
• Chiarezza Contrattuale: Siamo uno Studio di Consulenza Tecnico/Legale, non un'agenzia immobiliare tradizionale. Il rapporto è regolato da un incarico chiaro, sottoscritto dalle parti, senza sorprese per il Cliente.

//////////////////🛠️ SERVIZI DI BASE INCLUSI///////////////////////////////////////

Offriamo un pacchetto completo per assisterti e consigliarti nella massima sicurezza:
• Consulenza gratuita (telefonica o su appuntamento).
• Analisi documentale approfondita in collaborazione con esperti legali, tecnici, notai e commercialisti.
• Assistenza completa per ogni adempimento: visite, pratiche, firme digitali, domande di partecipazione, saldi, tasse, consegna immobile, sanatorie, ecc.
• Visita dell’immobile organizzata gratuitamente dal nostro Studio in via telematica.
• Consulenza creditizia su misura con un esperto di Banca.
• Supporto Stragiudiziale per analizzare e gestire situazioni debitorie complesse.
------------------------------------------------------------------------------------------------------------------------

CONTATTACI SUBITO

Per avere maggiori informazioni o per richiedere un sopralluogo potrai contattarci ai seguenti recapiti :
• Tel: 0824.607786 - 0824.275196 - 327.2178180
• Mail: info@iadanzaimmobiliareaste.com
• Web: www.iadanzaimmobiliareaste.com
• Rif. interno: 25QR+218
Caratteristiche
Codice dell'annuncio:
QR+
Città:
Bergamo (Celadina)
Categoria:
Appartamento
Locali:
6
Camere:
4
Bagni:
2
Mq:
135
Balconi:
1
Anno:
1963
Classe energetica:
Non dichiarata
Stato Immobile:
Buono
Grado:
Economico
Posizione:
Centro
Panorama:
Vista Aperta
Lati Liberi:
2
Giardino:
No
Arredi:
Non Arredato
Tipo Soggiorno:
Salone
Tipo Cucina:
Semi Abitabile
Riscaldamento:
Autonomo
Tipo Riscaldam.:
Caldaia
Tipo Impianto:
Radiatori
Fonte Energetica:
Gas
Acqua Calda:
Autonoma
Raffrescamento:
Split
Infissi:
Legno
Serramenti:
Buono
Persiana:
Tapparella Legno
Pavim. Giorno:
Personalizzato
Pavim. Notte:
Personalizzato
Pavim. Cucina:
Personalizzato
Pavim. Bagno:
Personalizzato
Pavimento:
Personalizzato
Accesso Disabili:
Montascale
Accessori
Parco Condominiale
Passaggio Automobilistico
Passaggio Pedonale
Porta Blindata
Planimetrie
Video
Virtual tour
Mappa
Via amerigo vespucci, 5 - Bergamo (BG)
FORM DI RICHIESTA
Cookie preference