Trilocale all'asta a Napoli (NA)

NapoliFuorigrotta - Appartamento in vendita
147.750 €
Caratteristiche principali
87 m²
Superficie
3
Locali
2
Camere
2
Bagni
Descrizione
Codice Annuncio: V000962 TR
Offerta Minima: 147.750,00
Prezzo Base: 197.000,00
Valore di Perizia: 224.000,00
Data e Ora dell’Asta: 07/07/2026 16:30
Termine Presentazione Offerte: 06/07/2026 12:30

********************************************************************************
N.B:
-Le foto e la geolocalizzazione presenti negli annunci potrebbero essere solo indicative. La documentazione ufficiale invece è disponibile su richiesta e solo essa farà fede sul piano legale .CONTATTARE LO STUDIO PER CONFERMA E PER MAGGIORI INFORMAZIONI !

-La vendita all’Asta dell’immobile è stata disposta dal TRIBUNALE DI COMPETENZA e presuppone che l’interessato - qualora intenda partecipare in autonomia - abbia piena conoscenza e consapevolezza dei contenuti di tutta la documentazione riguardante la PROCEDURA se non intende rivolgersi ad un Professionista del Settore !

-Per avere maggiori informazioni o per richiedere un sopralluogo potrai contattarci ai seguenti recapiti :
• Tel: 0824.607786 - 0824.275196 - 327.2178180
• Mail: info@iadanzaimmobiliareaste.com
• Web: www.iadanzaimmobiliareaste.com
********************************************************************************
Trilocale all'asta a Napoli (NA) in Via Giacomo Leopardi, 80.
L'immobile è situato nel quartiere di Fuorigrotta centrale, a pochi passi da:
Cumana (Largo Lala), Via Lepanto, attività commerciali, scuole e servizi.
La zona è caratterizzata da alta richiesta abitativa, ottimi collegamenti e forte potenziale sia per uso residenziale che investimento.
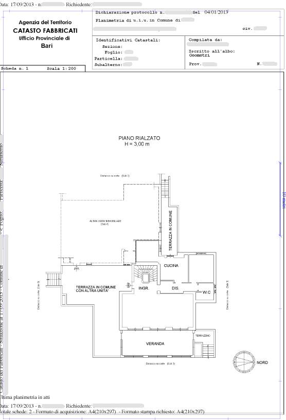
L'unità immobiliare si trova all’ottavo piano con ascensore di un fabbricato residenziale e al suo interno risulta così composto: open space soggiorno/cucina, due camere da letto, una cabina armadio, due servizi igienici.
------------------------------------------------------------------------------------------------------------------------

////////////////////////////////SCOPRI LA DIFFERENZA////////////////////////////////////////
Perché sceglierci?

PERCHE DI NOI TI PUOI FIDARE!

Ti basta compilare la richiesta presente a lato dell’annuncio e riceverai tutta l’assistenza necessaria per ricercare ed acquistare l’immobile che desideri!

//////////////////🌟 PROMOZIONI ESCLUSIVE ONLINE/////////////////////////

Oltretutto Inviandoci la tua richiesta tramite il FORM DI CONTATTO, presente sulla destra di tutti gli annunci inseriti sul nostro SITO www.iadanzaimmobiliareaste.com otterrai automaticamente:
- Una Consulenza gratuita iniziale.
- Una polizza Protezione Casa in OMAGGIO!
- La restituzione delle spese di istruttoria (solo in caso di aggiudicazione).
- Uno Sconto del 3% sul nostro compenso finale.


/////////////////🔑 I NOSTRI PUNTI DI FORZA////////////////////////////////////////

Ciò che ci rende unici è il nostro approccio dedicato e professionale, nell'interesse esclusivo del cliente acquirente.
• Consulenza Gratuita e Professionale: Sempre disponibili per una consulenza senza impegno, con cortesia e professionalità.
• Indipendenza e Trasparenza: Operiamo su rappresentanza soltanto in favore dell’acquirente, senza l'assillo di dover vendere a tutti i costi, garantendo imparzialità e competenze. La nostra reputazione è la tua prima garanzia.
• Visite Immobiliari Organizzate: Se desideri visionare un immobile, organizziamo la visita in modo completamente gratuito, occupandoci noi di tutte le formalità telematiche necessarie.
• Istruttoria accurata: A differenza di molti operatori del Settore che si limitano a "smaltire" immobili come "visti e piaciuti", il nostro approfondito esame della pratica (legale, tecnico, condominiale, fiscale, finanziario) ti assicurerà la tranquillità che cercavi. Noi redigiamo una "Relazione di Fattibilità Tecnico/Legale" prima di ogni partecipazione all'asta che sintetizza ogni aspetto della Procedura.
Siamo gli unici insomma a "metterci la faccia".
• Assistenza dedicata passo dopo passo: Il nostro consulente esperto ti assiste in ogni fase, dalla ricerca all'aggiudicazione e anche oltre.
• Ricerca Personalizzata: Se non hai tempo per la ricerca, inviaci la tua richiesta tramite il SITO e lo faremo noi per te.
• Chiarezza Contrattuale: Siamo uno Studio di Consulenza Tecnico/Legale, non un'agenzia immobiliare tradizionale. Il rapporto è regolato da un incarico chiaro, sottoscritto dalle parti, senza sorprese per il Cliente.

//////////////////🛠️ SERVIZI DI BASE INCLUSI///////////////////////////////////////

Offriamo un pacchetto completo per assisterti e consigliarti nella massima sicurezza:
• Consulenza gratuita (telefonica o su appuntamento).
• Analisi documentale approfondita in collaborazione con esperti legali, tecnici, notai e commercialisti.
• Assistenza completa per ogni adempimento: visite, pratiche, firme digitali, domande di partecipazione, saldi, tasse, consegna immobile, sanatorie, ecc.
• Visita dell’immobile organizzata gratuitamente dal nostro Studio in via telematica.
• Consulenza creditizia su misura con un esperto di Banca.
• Supporto Stragiudiziale per analizzare e gestire situazioni debitorie complesse.
------------------------------------------------------------------------------------------------------------------------

CONTATTACI SUBITO

Per avere maggiori informazioni o per richiedere un sopralluogo potrai contattarci ai seguenti recapiti :
• Tel: 0824.607786 - 0824.275196 - 327.2178180
• Mail: info@iadanzaimmobiliareaste.com
• Web: www.iadanzaimmobiliareaste.com
• Rif interno: 23TR36
Caratteristiche
Codice dell'annuncio:
V000962
Città:
Napoli (Fuorigrotta)
Categoria:
Appartamento
Locali:
3
Camere:
2
Bagni:
2
Mq:
87
Balconi:
1
Mq Balcone:
5
Piano:
8
Classe energetica:
In fase di valutazione
Stato Immobile:
Buono
Grado:
Economico
Posizione:
Centro
Panorama:
Vista Aperta
Lati Liberi:
2
Giardino:
No
Arredi:
Non Arredato
Tipo Soggiorno:
Sala da Pranzo
Tipo Cucina:
Angolo Cottura
Riscaldamento:
Autonomo
Tipo Riscaldam.:
Caldaia
Tipo Impianto:
Radiatori
Fonte Energetica:
Metano
Acqua Calda:
Autonoma
Raffrescamento:
Split
Infissi:
Alluminio
Serramenti:
Buono
Persiana:
Oscurante PVC
Pavim. Giorno:
Gres Porcellanato
Pavim. Notte:
Gres Porcellanato
Pavim. Cucina:
Gres Porcellanato
Pavim. Bagno:
Gres Porcellanato
Accessori
Aria Condizionata
Armadio a Muro
Doppi Vetri
Passaggio Pedonale
Porta Blindata
Video Citofono
Planimetrie
Mappa
Via Giacomo Leopardi, 80 - Napoli (NA)
FORM DI RICHIESTA
Cookie preference